Titelbild

Geschäftshaus Breite Straße Berlin
Auf den historischen Spuren des Ermelerhauses
Beschreibung
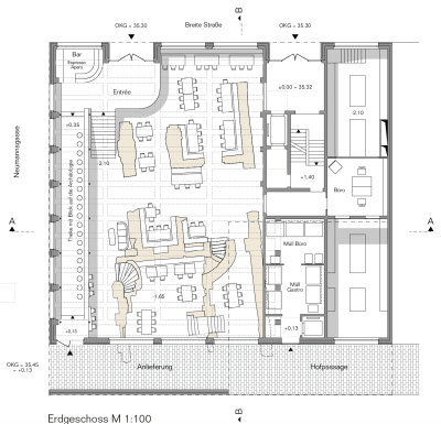
Für den historischen Ort des ehemaligen Ermelerhauses entwickelten Schmitt von Holst ein repräsentatives Geschäftshaus an der Ecke Neumannsgasse / Breite Straße. Über eine neue Hofpassage wird in Zukunft ein „Archäologischer Pfad“ führen, der fünf Teilgrundstücke verbindet und die auf dem Grundstück gesicherten archäologischen Funde des Ermelerhauses aus dem 17. bis 19. Jahrhundert präsentieren und vernetzen wird.
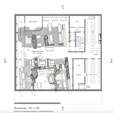
Das Geschäftshaus beinhaltet eine Erlebnisgastronomie mit bis zu 120 Plätzen im Erdgeschoss und Souterrain, in der diese wertvollen Funde atmosphärisch präsentiert werden. Im Sockelgeschoss öffnet sich zur Neumannsgasse ein handwerklich gemauerter Segmentbogen, der als Motiv der klassischen Berliner Tordurchfahrt den Auftakt der Hofpassage mit einem eigenen Zugang zur Gastronomie bildet. Als „Archäologisches Fenster“ ermöglichen mehrere Öffnungen Blickbezüge zu den historischen Grundmauern.
Es entsteht ein städtisches Haus mit Understatement, das qualitative, flexible und funktionale Büroflächen in prominenter Lage bietet und mit einer wertigen und schmuckvoll ausgeführten Fassadengestaltung auf die historischen Spuren verweist.
Bilder und Pläne
Datenblatt
- Ort
- Berlin-Mitte
- Typologie
- Büro
- Aufgabe
- Entwicklung eines Geschäftshauses auf den historischen Spuren des ehemaligen Ermelerhauses in Berlin-Mitte
- Auftraggeber
- Senatsverwaltung für Stadtentwicklung, Bauen und Wohnen, Berlin
- Leistungen
- Wettbewerb


























