Titelbild

Geschäftshaus Am Molkenmarkt
Neue Adresse in der historischen Mitte Berlins
Beschreibung
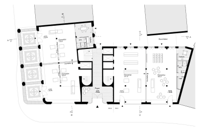
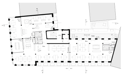
In der historischen Mitte Berlins plant der Berliner Senat eines der bedeutendsten Stadtentwicklungsvorhaben der Hauptstadt. Den ursprünglich bedeutenden Molkenmarkt soll ein neues Quartier auf Grundlage der Blockstrukturen der Vorkriegszeit mit einer urbanen Nutzungsmischung aus Gewerbe, Kultur und Wohnen wiederbeleben. Den Auftakt bilden zwei repräsentative Geschäftshäuser an der Ecke Am Molkenmarkt/Grunerstraße.
Das Konzept von Schmitt von Holst folgt klassischen architektonischen Prinzipien Berliner Geschäftshäuser und liefert die selbstbewusste Interpretation eines „Geschäftshauses des 21. Jahrhunderts“, das als Holz-Hybrid-Konstruktion auch einen Beitrag für klimaorientiertes Planen und Bauen leistet. Beide Häuser sind als eigenständige Baukörper mit differenzierten Geschosshöhen ablesbar und über einen gemeinsamen Erschließungskern verbunden. Ein sechsgeschossiger Hochpunkt betont die besondere Ecksituation als Eingangstor zum Quartier.
Mehr über den Wettbewerb Am Molkenmarkt (Block/B1)
Bilder und Pläne
Datenblatt
- Ort
- Berlin
- Typologie
- Büro
- Aufgabe
- Entwicklung von zwei Geschäftshäusern am historischen Molkenmarkt in Berlin
- Kooperation
- Schmitt von Holst Architekten und vangeisten.marfels architekten
- Auszeichnung
- 3. Preis im Realisierungswettbewerb (Am Molkenmarkt Block B/1, Los 3)
- Auftraggeber
- Senatsverwaltung für Stadtentwicklung, Bauen und Wohnen, Berlin
- Leistungen
- Wettbewerb




























